600 000 zł

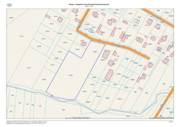
8 822 m2

Działka Budowlana na Sprzedaż  |  Tłuszcz ul. Zagłoby

Tłuszcz

ul. Zagłoby

600 000 zł

68 zł /m2

DH637170
DH637170

Powierzchnia

8822 m2

Opis

Szukasz przestronnej działki z możliwością zabudowy w spokojnej okolicy, z dogodnym dojazdem do Warszawy?
Ta oferta może być idealna dla Ciebie!

Prezentuję działkę o powierzchni 8 822 m², położoną w miejscowości Tłuszcz, w powiecie wołomińskim, województwo mazowieckie.
Teren ten łączy w sobie funkcję budowlaną i tereny zielone, co daje szerokie możliwości zagospodarowania – zarówno pod budowę domu, jak i na cele rekreacyjne lub uprawne.

Przeznaczenie
– Rodzaj działki: budowlano-rolna
– Około 2 500 m² terenu przeznaczone jest pod zabudowę mieszkaniową jednorodzinną; pozostała część to grunt rolny
– Dojazd: droga utwardzona z dostępem do drogi publicznej
– Stan prawny: uregulowany, bez obciążeń

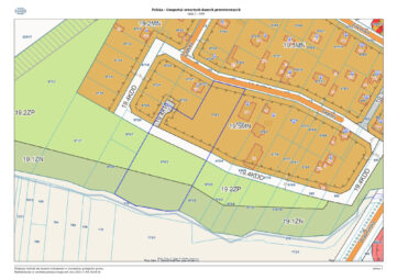
Teren, na którym położona jest oferowana nieruchomość jest objęty miejscowym planem zagospodarowania przestrzennego 19.5 MN (około 2500 m2)

1) przeznaczenie: tereny zabudowy mieszkaniowej jednorodzinnej, z wykluczeniem zabudowy mieszkaniowej jednorodzinnej szeregowej lub grupowej;
2) dopuszczenie lokalizacji:
a) budynków gospodarczych, garażowych i gospodarczo-garażowych,
b) dojść i dojazdów,
c) infrastruktury technicznej;
3) zasady, parametry i wskaźniki zagospodarowania terenu:
a) minimalna intensywność zabudowy: 0,1,
b) maksymalna intensywność zabudowy: 0,9,
c) maksymalna powierzchnia zabudowy w ramach działki budowlanej: 30%,
d) minimalny udział procentowy powierzchni biologicznie czynnej w odniesieniu do powierzchni działki budowlanej: 40%,
e) minimalna powierzchnia nowo wydzielonej działki budowlanej:
– dla zabudowy wolnostojącej: 800 m2, Dziennik Urzędowy Województwa Mazowieckiego – 32 – Poz. 14911
– dla zabudowy bliźniaczej: 600 m2;
4) zasady, parametry i wskaźniki kształtowania zabudowy:
a) maksymalna wysokość zabudowy:
– mieszkaniowej: 11 m,
– gospodarczej, garażowej i gospodarczo-garażowej: 6 m,
b) dachy spadziste dwu lub wielospadowe o kącie nachylenia połaci dachowych nie większym niż 45 stopni lub dachy płaskie, lub dachy zielone.

Część działki leży na terenie 19.2 ZP:

1) przeznaczenie: tereny zieleni urządzonej;
2) dopuszczenie lokalizacji:
a) ciągów pieszych i ścieżek rowerowych,
b) terenowych urządzeń sportowych i rekreacyjnych,
c) infrastruktury technicznej;
3) warunki zagospodarowania terenu:
a) minimalny udział procentowy powierzchni biologicznie czynnej: 70%,
b) nakaz lokalizacji drzew i krzewów w sąsiedztwie obszaru kolejowego (poza obszarem objętym planem) zgodnie z przepisami odrębnymi z zakresu transportu kolejowego.

oraz na terenie 19.1 ZN:

1) przeznaczenie: teren zieleni naturalnej;
2) dopuszczenie: wód powierzchniowych, zadrzewień śródpolnych, urządzeń wodnych oraz infrastruktury technicznej;
3) warunki zagospodarowania terenu:
a) obowiązuje zachowanie terenów podmokłych pokrytych roślinnością szuwarową lub łęgową,
b) minimalny udział procentowy powierzchni biologicznie czynnej: 80%.

Na terenie działki przebiegać ma również droga wewnętrzna oznaczona symbolem 19.4 KDD

Media
– Prąd, wodociąg, gaz i światłowód – dostępne w drodze przy działce
– Kompleksowe uzbrojenie terenu zapewnia komfort przyszłej inwestycji

 
Lokalizacja
Położenie działki w Tłuszczu to doskonałe połączenie spokoju i wygody.
Okolica jest cicha, zielona, idealna dla osób ceniących przestrzeń i kontakt z naturą, a jednocześnie zależy im na dogodnym dojeździe do stolicy — do Warszawy można dotrzeć w krótkim czasie dzięki dobrej infrastrukturze drogowej i kolejowej.

Zalety
– Część budowlana ok. 2 500 m² – gotowa pod zabudowę mieszkaniową
– Uregulowany stan prawny, działka bez obciążeń
– Media w drodze – pełne uzbrojenie terenu
– Możliwość połączenia funkcji mieszkaniowej i rekreacyjnej
– Spokojna lokalizacja z dogodnym dojazdem do Warszawy

Zapraszamy do obejrzenia działki!

Dojazd jest prosty, a teren nieogrodzony – można swobodnie obejrzeć nieruchomość w dowolnym momencie.

Lokalizacja

Dom & House

Nieruchomość została dodana do schowka

Nieruchomość została usunięta ze schowka