45 000 zł

194,3 m2
2 pom.

Lokal gastronomiczny na Wynajem  |  Gdańsk Śródmieście ul. Chmielna

Gdańsk Śródmieście

ul. Chmielna

45 000 zł

232 zł /m2

DH643644
DH643644

Powierzchnia użytkowa

194,3 m2

Ilość pomieszczeń

2

Piętro / Pięter

0 / 5

Opis

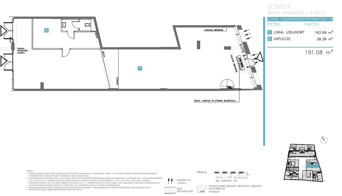
Na wynajem lokal gastronomiczny w stanie deweloperskim o powierzchni około 194,30 m2 z możliwością aranżacji dodatkowej powierzchni na ogródek zewnętrzny, zlokalizowany w prestiżowej inwestycji Granaria na Wyspie Spichrzów z witrynami od strony rzeki i mariny.
Nieruchomość spełniająca wymogi pod lokal gastronomiczny. Składa się z sali usługowej o powierzchni ok 165 m2 oraz zaplecza ok 30 m2 do dowolnej aranżacji.
Lokalizacja o dużym międzynarodowym ruchu turystycznym i lokalnym z dogodną komunikacją. W najbliższym sąsiedztwie liczne hotele, prestiżowe lokale gastronomiczne, rozrywkowe i handlowe.
Bez wątpienia ta lokalizacja i przestrzeń stanowią  najważniejsze cechy lokalu, która będą odgrywały kluczowe znaczenie dla przyszłego najemcy.

Duże przeszklenia witryn, wejście z poziomu chodnika od strony rzeki i duża przestrzeń wewnętrzna do dowolnej aranżacji to dodatkowe atuty.

Lokalizacja
Inwestycja zlokalizowana w samym sercu Gdańska na Wyspie Spichrzów. To nowe centrum biznesowe, turystyczne i wypoczynkowe nad Motławą.
Lokalizacja o dużym, międzynarodowym ruchu turystycznym i lokalnym z dogodną komunikacją, z dużym ciągiem komunikacyjnym nad brzegiem Motławy. W najbliższym sąsiedztwie liczne hotele, prestiżowe lokale gastronomiczne, rozrywkowe i handlowe.
Bez wątpienia ta lokalizacja i przestrzeń stanowią najważniejsze cechy lokalu, która będą odgrywały kluczowe znaczenie dla przyszłego najemcy.

Zalety
– prestiżowa inwestycja,
– bezpośrednie wejście od strony rzeki i mariny
– duży ruch pieszy,
– duże witryny,
– miejsce na szyld,
– duże możliwości aranżacyjne lokalu.

Wideo
Lokalizacja

Dom & House

Nieruchomość została dodana do schowka

Nieruchomość została usunięta ze schowka