4 900 000 zł

101,4 m2
2 pok.

Mieszkanie na Sprzedaż  |  Gdynia Orłowo ul. Króla Jana III

Gdynia Orłowo

ul. Króla Jana III

4 900 000 zł

48 323 zł /m2

DH940722
DH940722

Powierzchnia

101,4 m2

Ilość pokoi

2

Piętro / Pięter

0 / 2

Rok budowy

2010

Rynek

Wtórny

Ogrzewanie

CO własne

Stan techniczny

bardzo dobry

Balkon/taras

Tak

Garaż/miejsce parkingowe

Tak

Ogródek

Tak

Winda

Tak

Opis

Najwyższa jakość | Bliskość morza i plaży | Bliskość lasu i molo | Kominek | Projektowany i wykańczany przez architekta | Strzeżone osiedle ze strefą fitness 

Ten apartament nie udaje luksusu — on go definiuje. 101,4 m² w dwóch, naprawdę dużych strefach zamiast „standardowych” pokoi. To przestrzeń dla tych, którzy cenią oddech, światło i jakość.

Kameralna inwestycja Apartamenty Króla Jana (Invest Komfort, 2010) to strzeżone osiedle z prywatną strefą fitness. W częściach wspólnych dbałość o detal, zieleń i spokój, wśród sąsiadów wiele „second home”, co przekłada się na ciszę przez większość roku. Brak zgody na najem krótkoterminowy podtrzymuje prestiż i komfort życia mieszkańców.

Apartament
Serce mieszkania to imponujący open space: salon z kominkiem, kuchnia z granitowymi blatami i jadalnia- wszystko połączone, ale… na Twoich zasadach. Drzwi kasetowe pozwalają w sekundę podzielić przestrzeń i stworzyć zaciszną strefę pracy, kino domowe czy prywatną część gościnną.
Master bedroom ma okno na całą ścianę i prywatny pokój kąpielowy: prysznic oraz wyjątkowo dużą, wolnostojącą wannę- miejsce na długie wieczory z książką.
Całości dopełniają dębowe podłogi. W łazience i WC ogrzewanie podłogowe, w korytarzu duża szafa pełniąca rolę garderoby.

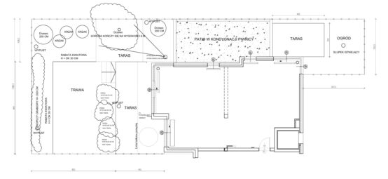
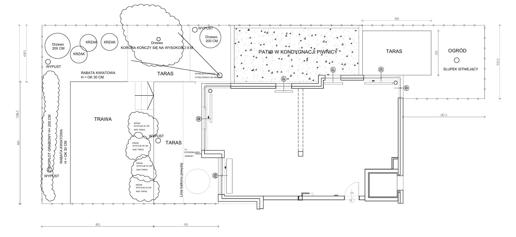
Z salonu, sypialni i jadalni wyjdziesz na dwa tarasy z markizami i do dwóch przydomowych ogrodów. Główny, od zachodu, to Twój prywatny teatr zachodów słońca- idealny na kolację pod chmurką, jogę o zmierzchu czy spokojną kawę w deszczu (markizy robią tu świetną robotę).

Do apartamentu przynależą 2 miejsca w podziemnej hali garażowej (1 z ładowarką) i komórka lokatorska (7,5 m2) w cenie 200.000 zł.

Lokalizacja
Tu codzienność układa się sama: poranny bieg leśnymi ścieżkami, chwila na molo, szybka kąpiel w morzu i śniadanie w ogrodzie. Blisko do wszystkiego, co ważne: świetna komunikacja (ZKM, SKM, Al. Zwycięstwa), zaplecze usługowe i gastronomiczne w zasięgu krótkiego spaceru. Morze i plaża- zaledwie 120 m pieszo.
Prestiżowa lokalizacja dająca gwarancję ciszy, spokoju.

Atuty
– maksymalna przestrzeń i komfort
ogród od zachodu + 2 tarasy z markizami
– kominek, dębowe podłogi, granitowe blaty, ogrzewanie podłogowe
– szybkie wydzielanie stref
– projekt wykończenia przez architekta
– 120 m do morza
– brak najmu krótkoterminowego (spokój i porządek we wspólnocie)
– możliwość powiększenia sypialni
– osobny korytarz zwiększający prywatność

ENG
Top quality | Close to the sea and beach | Close to the forest and pier | Fireplace | Designed and finished by an architect | Guarded estate with private fitness zone.

This apartment doesn’t pretend to be luxury- it defines it. 101.4 m² arranged into two genuinely large zones instead of “standard” rooms. A space for those who value air, light and quality.

The boutique development Apartamenty Króla Jana (Invest Komfort, 2010) is a gated community with a private fitness area. The common areas show attention to detail, greenery and quiet. Many neighbours use their flats as “second homes”, which translates into peace for most of the year. No short-term rentals are allowed, preserving the prestige and comfort of living for residents.

The apartment
The heart of the home is an impressive open space: living room with fireplace, kitchen with granite countertops and a dining area- all connected yet on your terms. Pocket (cassette) doors let you divide the space in seconds to create a quiet work zone, a home cinema or a private guest area.

The master bedroom features a wall-to-wall window and a private bathing room with a shower and an exceptionally large freestanding bathtub- a place for long evenings with a book. Completing the picture are oak floors. The bathroom and WC have underfloor heating, and the hallway contains a large wardrobe.

From the living room, bedroom and dining area you step onto two terraces with awnings and into two private gardens. The main west-facing garden is your private theatre of sunsets- perfect for dining under the open sky, twilight yoga or a peaceful coffee in the rain (the awnings do a great job here).

The apartment comes with two parking spaces in the underground garage (one with an EV charger) and a storage unit (7.5 m²) (price: PLN 200,000).

Location
Everyday life arranges itself here: a morning run along forest paths, a moment at the pier, a quick swim in the sea and breakfast in the garden. Close to everything that matters: excellent transport (ZKM, SKM, Al. Zwycięstwa), services and dining within a short walk. The sea and beach are just 120 m away. A prestigious location guaranteeing peace and quiet.

Highlights
– Maximum space and comfort,
– West-facing garden + two terraces with awnings,
– Fireplace, oak floors, granite countertops, underfloor heating,
– Quick zone division with pocket doors,
– Finish designed by an architect,
– 120 m to the sea,
– No short-term rentals (quiet and order in the community),
– Option to enlarge the bedroom,
– Separate corridor increasing privacy.

Wideo
Lokalizacja

Dom & House

Nieruchomość została dodana do schowka

Nieruchomość została usunięta ze schowka