659 940 zł

38,82 m2
2 pok.

Mieszkanie na Sprzedaż  |  Gdańsk Brzeźno ul. Uczniowska

Gdańsk Brzeźno

ul. Uczniowska

659 940 zł

17 000 zł /m2

DH441503
DH441503

Powierzchnia

38,82 m2

Ilość pokoi

2

Piętro / Pięter

0 / 5

Rok budowy

2026

Rynek

Pierwotny

Termin oddania

III kwartał 2027 r.

Ogrzewanie

CO miejskie

Stan techniczny

deweloperski

Balkon/taras

Tak

Garaż/miejsce parkingowe

Tak

Ogródek

Tak

Winda

Tak

Opis

Funkcjonalne, bardzo słoneczne mieszkanie 2 pokojowe na parterze od strony południowo-zachodniej. 
Jest to idealna propozycja dla osób ceniących:
– życie blisko natury i plaży
– prestiżową lokalizację
– wysoką jakość wykonania
– świetny potencjał inwestycyjny pod najem krótko- i długoterminowy
W ofercie sprzedaży posiadamy również mieszkania 3 i 4 pokojowe.
Odbiór mieszkania III kwartał 2027 roku. 

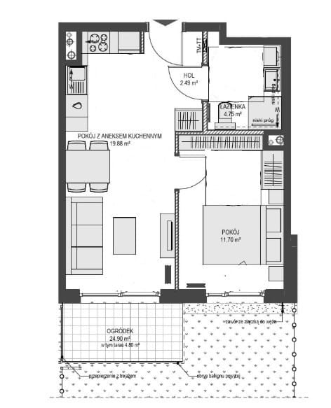
Pomieszczenia
– pokój dzienny z aneksem 19,88 m2
– pokój 11,70 m2
– łazienka 4,75 m2
– hol 2,49 m2
– ogródek – 24,90 m2

Lokalizacja
Lokalizacja zapewnia doskonałe połączenie z całym Trójmiastem — szybki dojazd do centrum Gdańska, Wrzeszcza i Oliwy, a jednocześnie bliskość morza, ścieżek rowerowych i terenów spacerowych.
Mieszkania znajdują się zaledwie ok. 1,5km od morza i plaży, w pobliżu parków i zieleni, a jednocześnie blisko centrum Gdańska i z dobrym dostępem do typowo miejskich atrakcji.
– Przystanek autobusowy – 1 min pieszo
– Przystanek tramwajowy – 15 min pieszo
– Plaża i molo w Brzeźnie – 10 min rowerem
– Park Reagana – 13 min rowerem
– Galeria Przymorze – 11 min samochodem
– Forum Gdańsk – 15 min samochodem

Zalety
– własny ogródek
– niską, kameralna zabudowa
– renomowany deweloper eurostyl. com. pl
– cichobieżne windy i hale garażowe
– monitoring i kontrola dostępu
– strefy rekreacyjne i zielone patio
– blisko terenów rekreacyjnych;

Powyższa cena lokalu jest ceną brutto.
Udział w działce drogowej – 4 000 zł
Cena elementów dodatkowych:
– komórka lokatorska lub boks w cenie od 3000 zł do 5000 zł/m2
– miejsca w hali garażowej w cenie 33 000 zł.- 55000 zł.
– miejsce postojowe zewnętrzene w cenie 25 000 zł

Lokalizacja

Adres strony dewelopera: https://www.eurostyl.com.pl

Dom & House

Nieruchomość została dodana do schowka

Nieruchomość została usunięta ze schowka