521 510 zł

43,1 m2
2 pok.

Mieszkanie na Sprzedaż  |  Pogórze ul. Ignacego Paderewskiego

Pogórze

ul. Ignacego Paderewskiego

521 510 zł

12 100 zł /m2

DH351697
DH351697

Powierzchnia

43,1 m2

Ilość pokoi

2

Piętro / Pięter

1 / 3

Rok budowy

2024

Rynek

Wtórny

Termin oddania

Gotowe do odbioru

Ogrzewanie

CO miejskie

Stan techniczny

deweloperski

Balkon/taras

Tak

Garaż/miejsce parkingowe

Tak

Winda

Tak

Opis

Twoje pierwsze mieszkanie ?
Szukasz idealnego miejsca na start lub inwestycję? To funkcjonalne, 2-pokojowe mieszkanie w stanie deweloperskim to doskonała propozycja dla osób ceniących komfort, nowoczesność i świetną lokalizację.
Lokal o przemyślanym układzie znajduje się na parterze, z ekspozycją wschodnią, co zapewnia przyjemne poranne światło i komfort w ciągu dnia.

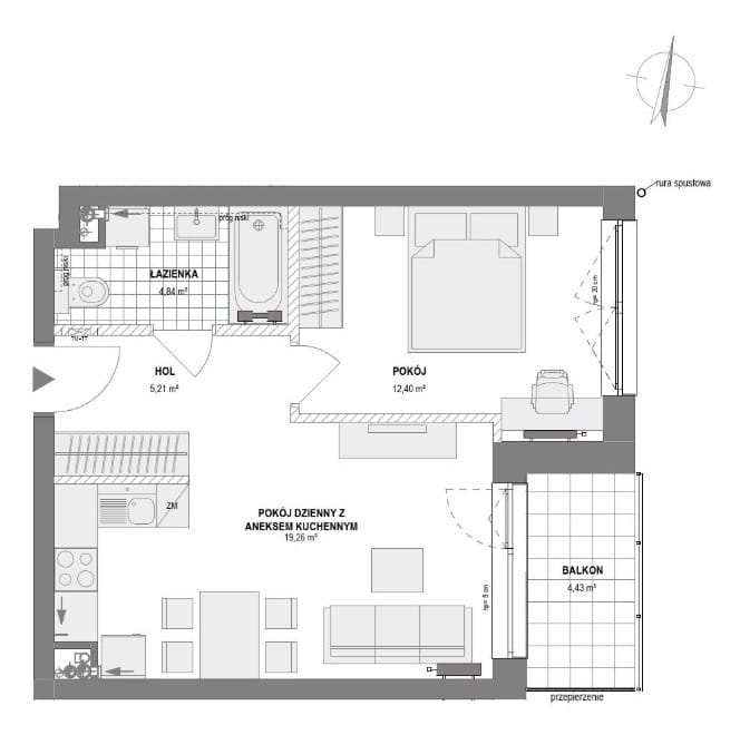
Pomieszczenia
– pokój dzienny z aneksem 19,26 m2
– pokój 12,40 m2
– łazienka 4,84 m2
– hol 5,21 m2
– balkon – 4,43 m2

Lokalizacja
Inwestycja granicząca z Gdynią. Osiedle budowane zaledwie dwie ulice od granicy Gdyni. W pobliżu lokalna infrastruktura: centrum Handlowe Szperk, szkoły podstawowe, przedszkola, punkty usługowe. Ta część Trójmiasta należy do terenów, na których planowana jest rozbudowa dróg oraz linii kolejowej.

Zalety
– osiedle monitorowanie, wideo-domofony;
– blisko terenów rekreacyjnych;
– renomowany deweloper eurostyl. com. pl
– na osiedlu: ścianka wspinaczkowa dla dzieci, zegar słoneczny, panele fotowoltaiczne, ogrody deszczowe, stojaki na rowery przy budynkach, strefa crossfit, ułatwienia dla osób niepełnosprawnych;
– w budynkach: rowerownie, gniazda do ładowania aut elektrycznych w halach garażowych, windy;
– hala garażowa i miejsca parkingowe naziemne.

Cena elementów dodatkowych:
– komórka lokatorska w cenie 10120
– miejsca w hali garażowej w cenie 27 000 zł.

To mieszkanie to świetna okazja, by stworzyć przestrzeń dokładnie taką, jakiej potrzebujesz – od podstaw, według własnego gustu. Nie czekaj – umów się na prezentację.

Lokalizacja

Dom & House

Nieruchomość została dodana do schowka

Nieruchomość została usunięta ze schowka