860 517 zł

45,53 m2
2 pok.

Mieszkanie na Sprzedaż  |  Gdańsk Śródmieście ul. Powstańców Warszawskich

Gdańsk Śródmieście

ul. Powstańców Warszawskich

860 517 zł

18 900 zł /m2

DH909677
DH909677

Powierzchnia

45,53 m2

Ilość pokoi

2

Piętro / Pięter

0 / 3

Rok budowy

2025

Rynek

Pierwotny

Termin oddania

Gotowe do odbioru

Ogrzewanie

CO miejskie

Stan techniczny

deweloperski

Balkon/taras

Tak

Garaż/miejsce parkingowe

Tak

Ogródek

Tak

Winda

Tak

Opis

2 pokoje z dużym ogrodem – nowoczesne osiedle blisko centrum Gdańska
Szukasz mieszkania, które łączy komfort, funkcjonalność i świetną lokalizację? Ta oferta zdecydowanie wyróżnia się na tle innych.
Przytulne i dobrze zaprojektowane mieszkanie 2-pokojowe znajduje się na nowoczesnym, estetycznym osiedlu, zaledwie kilka minut od centrum Gdańska – idealne miejsce do życia na co dzień.
Największy atut? Imponujący ogród o powierzchni blisko 77 m² – Twoja prywatna przestrzeń do relaksu, spotkań i odpoczynku na świeżym powietrzu.
Osiedle tworzy pięć eleganckich budynków z łącznie 120 apartamentami o zróżnicowanych metrażach (28-160 m²), z balkonami, tarasami lub ogródkami. Całość zaprojektowana z myślą o wygodzie mieszkańców i wysokim standardzie życia.
Na terenie inwestycji znajduje się również budynek z salą spotkań oraz salą fitness – idealne rozwiązanie zarówno dla rodzin, jak i osób aktywnych.
To miejsce, w którym wygoda spotyka się z nowoczesnością, a miejski styl życia z przestrzenią do odpoczynku.

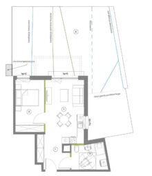
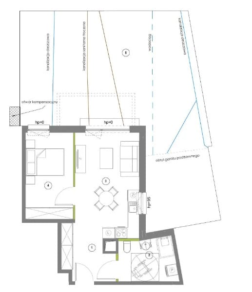
Pomieszczenia:
– pokój dzienny z aneksem – 21,07 m²
– pokój – 11,88 m²
– łazienka – 6,90 m²
– hol – 4,31 m²
– ogródek – 77,82 m²

Lokalizacja
– Doskonała lokalizacja – zaledwie 1,5 km do ścisłego centrum Gdańska
– W pobliżu pełna infrastruktura przyjazna rodzinom: sklepy, usługi, szkoły, przedszkola, przychodnie, miejsca kultury i rozrywki
– Centrum Handlowe Forum – 15 minut spacerem
– Blisko przystanki tramwajowe (ok. 8 minut pieszo), autobusowe oraz PKP Gdańsk Główny
– Do historycznego Śródmieścia dojdziesz w 15-20 minut
– Tylko 6 minut samochodem do Uniwersyteckiego Centrum Klinicznego
– W okolicy liczne tereny zielone: Góra Gradowa, Park Generała Bema, Park Śródmieście oraz Park Grodzisko z Centrum Hevelianum

Zalety
– duży, prawie 77-metrowy ogródek
– kameralne osiedle – tylko 5 niskich, dwupiętrowych budynków w otoczeniu zieleni
– położenie na wzgórzu ok. 20 m ponad okolicznymi ulicami – więcej światła, spokoju i widok na Gdańsk
– elegancka, spójna architektura z zielonymi dachami i stonowanymi elewacjami 
– inwestycja renomowanego dewelopera yareal. pl/odea-park,
– rozbudowana zieleń: ogrody deszczowe, rodzime gatunki roślin, liczne miejsca do relaksu na świeżym powietrzu 
– budynek klubowy dla mieszkańców z salą spotkań i salą fitness
– ekologiczny plac zabaw, poidełka dla ptaków, budki dla motyli – przyjazna, naturalna przestrzeń dla rodzin z dziećmi
– proekologiczne rozwiązania: panele fotowoltaiczne na dachach, zielone dachy, ogrody deszczowe, energooszczędne windy 
– certyfikaty BREEAM i „Zielony Dom” potwierdzające wysoką jakość i energooszczędność inwestycji 
– ograniczony ruch samochodowy na terenie osiedla – większe bezpieczeństwo i cisza
– możliwość zakupu miejsca postojowego w garażu podziemnym, także z ładowarką do auta elektrycznego
– dodatkowe udogodnienia: stacja naprawy rowerów, stacja pogodowa z czujnikiem jakości powietrza, wideodomofony, drzwi antywłamaniowe 
– wysokiej klasy stolarka – m.in. drewniane okna trzyszybowe

Powyższa cena lokalu jest ceną brutto.
Zakup bez PCC!

Elementy dodatkowe
– komórka lokatorska lub boks – od 15 000 do 35 000 zł
– miejsce w hali garażowej – od 49 900 do 69 900 zł

Lokalizacja

Adres strony dewelopera: https://yareal.pl/

Dom & House

Nieruchomość została dodana do schowka

Nieruchomość została usunięta ze schowka