1 042 938 zł

47,14 m2
2 pok.

Mieszkanie na Sprzedaż  |  Gdynia Redłowo ul. Legionów

Gdynia Redłowo

ul. Legionów

1 042 938 zł

22 124 zł /m2

DH552068
DH552068

Powierzchnia

47,14 m2

Ilość pokoi

2

Piętro / Pięter

8 / 16

Rok budowy

2025

Rynek

Pierwotny

Ogrzewanie

CO miejskie

Stan techniczny

deweloperski

Balkon/taras

Tak

Garaż/miejsce parkingowe

Tak

Winda

Tak

Opis

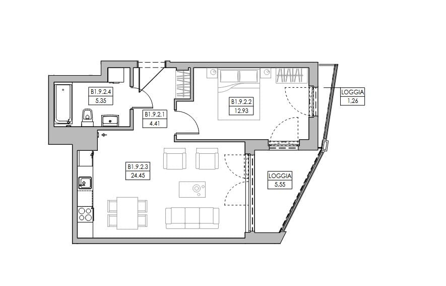
Przestronne 2-pokojowe mieszkanie o pow. 47,14 m2 w komfortowym rozkładzie pomieszczeń, Loggia 5,55 m2 +1,26 m2
Nieruchomość zlokalizowana na ósmym piętrze budynku w nowoczesnej inwestycji ALVARIUM 2.0 w doskonałej lokalizacji Gdyni. Redłowo polecane jest dla osób aktywnych życiowo i zawodowo, ale poczuje się tam dobrze praktycznie każdy. Mieszkanie oferowane w stanie deweloperskim, co pozwala na indywidualną aranżację zgodnie z preferencjami nabywcy.
Spójny deweloperski kompleks budynków o zróżnicowanych wysokościach po to aby każde mieszkanie otwarte było na własną przestrzeń do życia. Kompleks złożony jest w 5 budynków z czego jeden najwyższy 16 pięter. Cześć wspólną otwiera wysokie reprezentatywne na 2 kondygnacje lobby oraz portiernia. W dolnej kondygnacji zaprojektowano pasaż handlowo-usługowy, co pozwoli mieszkańcom na korzystanie z tych placówek bez utraty czasu na dojazd.
Kompleks posiada liczne tereny zielone, strefy relaksu, place zabaw dla najmłodszych.

W ofercie posiadam wiele innych propozycji w różnych metrażach! Zapraszam!

Pomieszczenia – Mieszkanie 47.14 m2
– Salon 24,45 m2 z aneksem kuchennym
– Pokój 12,93 m2
– Przedpokój 4,41 m2
– Łazienka 5,35 m2
– Loggia 5,55 m2
– Loggia 1,26 m2

Możliwość zakupu miejsca postojowego w hali garażowej:
w cenie 55 000 zł brutto
Możliwość zakupu komórki lokatorskiej i Box-u :
w cenie 5400 zł m2

Lokalizacja
Redłowo to dzielnica, która z pewnością zasługuje na uwagę! To jeden z najnowocześniejszych obszarów Gdyni, który kojarzony jest z świetną komunikacją oraz szybkim dostępem do morza.
Największymi zaletami Redłowa są walory przyrodnicze – liczne tereny zielone i rekreacyjne. Las Kępa Redłowska posiada wiele ścieżek dla spacerowiczów, a także rowerowych.

Zalety:
– doskonała nieruchomość pod względem inwestycyjnym
– więcej informacji na alvarium20. pl
– bardzo dobrze skomunikowana
– Liczne lokale handlowo- usługowe
– placówki edukacyjne szkolno – przedszkolne
– bliskość terenów rekreacyjnych Plaża, Parki, zaledwie 15 min spacerem.

Wideo
Lokalizacja

Dom & House

Nieruchomość została dodana do schowka

Nieruchomość została usunięta ze schowka