695 000 zł

49,7 m2
3 pok.

Mieszkanie na Sprzedaż  |  Gdańsk Chełm ul. Marcina Dragana

Gdańsk Chełm

ul. Marcina Dragana

695 000 zł

13 984 zł /m2

DH818543
DH818543

Powierzchnia

49,7 m2

Ilość pokoi

3

Piętro / Pięter

1 / 4

Rok budowy

1980

Rynek

Wtórny

Ogrzewanie

CO miejskie

Stan techniczny

do wykończenia

Balkon/taras

Tak

Piwnica

Tak

Opis

3 pok. po generalnym remoncie | duży balkon od zachodu | możliwość zrobienia zejścia do ogrodu

Na sprzedaż 3-pokojowe mieszkanie usytuowane na podwyższonym parterze przy ul. Dragana. Mieszkanie przeszło gruntowny remont wraz z wymianą wszystkich instalacji. Ogromnym atutem jest duży balkon od zachodniej strony dzięki czemu mieszkanie salon z aneksem kuchennym jest bardzo jasny do ostatnich promieni słońca. Z balkonu rozpościera się widok na zielony plac.
Lokal ma bardzo funkcjonalny układ i daje wiele możliwości aranżacyjnych- idealnie sprawdzi się zarówno dla rodziny, pary, jak i inwestora.

Mieszkanie jest przygotowane do dalszego wykończenia i wyposażenia według własnego gustu, co daje nowemu właścicielowi pełną swobodę urządzenia wnętrza.

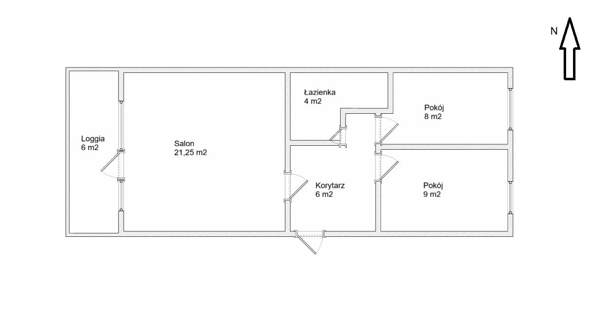
Pomieszczenia
– salon z aneksem kuchennym (21,25 m2) od strony zachodniej z wyjściem na duży balkon (6 m2) z możliwością zrobienia zejścia do ogrodu
– 2 sypialnie (9 m2 i 8 m2) od strony wschodniej
– łazienka (4 m2) z ogrzewaniem podłogowym
– przestronny przedsionek z miejscem na dużą szafę
Do mieszkania przynależą 2 piwnice (2 m2 i 3 m2).

Lokalizacja
Mieszkanie znajduje się w cichszej części Gdańsku Chełm. W okolicy mamy dużo parków kieszonkowych między budynkami, lokalne sklepy spożywcze. Dodatkowo w sąsiedztwie mamy przystanek autobusowy przez co mamy zapewniony łatwy i bezpośredni dostęp do centrum Gdańska.

Atuty
– 3 pokoje po remoncie generalnym z wymienionymi instalacjami,
– duży balkon od strony zachodniej
– możliwość zrobienia zejścia bezpośrednio do ogrodu
– 2 piwnice
– możliwość wykończenia przez nowego właściciela

Lokalizacja

Dom & House

Nieruchomość została dodana do schowka

Nieruchomość została usunięta ze schowka