2 390 000 zł

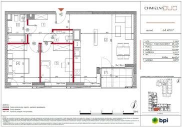
64,47 m2
3 pok.

Mieszkanie na Sprzedaż  |  Warszawa

Warszawa

2 390 000 zł

37 072 zł /m2

DH928311
DH928311

Powierzchnia

64,47 m2

Ilość pokoi

3

Piętro / Pięter

5 / 9

Rok budowy

2025

Rynek

Wtórny

Termin oddania

I kwartał 2026 r.

Ogrzewanie

CO miejskie

Stan techniczny

deweloperski

Garaż/miejsce parkingowe

Tak

Winda

Tak

Opis

Na sprzedaż słoneczny apartament w nowym apartamentowcu Chmielna Duo. Ta nowoczesna inwestycja klasy Premium, zlokalizowana w samym centrum Warszawy, została oddana do użytku w II kwartale 2025 r.
Inwestycja składa się z dwóch budynków wykończonych w najwyższym standardzie, z całodobową recepcją i ochroną. Między budynkami powstał pełen zieleni pasaż pieszy, przy którym znajdować się będą lokale usługowe. Dodatkowym miejscem relaksu jest taras na dachu dla mieszkańców.
Doskonałe położenie w ścisłym centrum Warszawy. Najbliższym sąsiadem inwestycji jest wieżowiec Varso Tower – najwyższy budynek biurowy w Europie. Wspaniała inwestycja idealna do zamieszkania lub też pod najem krótko- i długoterminowy.
Południowa ekspozycja nadaje dodatkowych walorów związanych z nasłonecznieniem, ciszą a także widokami z panoramicznych okien.
Apartament jest w stanie deweloperskim, co pozwala na dowolne zaprojektowanie powierzchni w wersji 3 lub 2 pokojowej w zależności od własnych preferencji.  Dodatkowo płatne miejsce postojowe w garażu podziemnym – 160.000 zł.

Pomieszczenia

Na metraż 64,47 m2 apartamentu, znajdującego się w budynku A, składają się:
– pokój z aneksem kuchennym – 28,16 m2
– sypialnia 1 – 10,41 m2
– sypialnia 2 – 10,41 m2
– łazienka – 4,41 m2
– wc – 1,98 m2
– hol – 9,1 m2

Opłaty czynszowe 1.040 zł

Lokalizacja
Doskonała infrastruktura: przystanki autobusowe i tramwajowe – 4 min pieszo, metro M2 – 6 min, a metro M1 – 12 min pieszo, Dworzec Centralny 5 min pieszo, Lotnisko Chopina – 20 min autem.Jest to idealne miejsce do zamieszkania dla tych, dla których architektura i jakość są równie ważne jak lokalizacja. Doskonałe położenie inwestycji, zaledwie 5 minut pieszo od Dworca Centralnego i Złotych Tarasów, idealnie wpisuje się w koncepcję nowoczesnego miasta w 15 minut.

Zalety
– Wyjątkowe położenie budynku pozwala nie tylko na przyjazne i bezpośrednie obcowanie ze ścisłym centrum od strony Ronda ONZ, Ronda Czterdziestolatka i Al. Jana Pawła II, ale również na poczucie kameralności i swobody od strony ul. Chmielnej i ul. Złotej.
– W najbliższej okolicy znajdują się wszelkie niezbędne punkty usługowo-handlowe, takie jak: piekarnie, sklepy, galerie handlowe (Złote Tarasy, Domy Towarowe Wars Sawa Junior, Vitkac) kawiarnie, restauracje (Fabryka Norblina, Browary Warszawskie), a także przedszkola, szkoły, przychodnie czy szpitale.
– Centrum biznesowe i kulturalne: nieruchomość znajduje się w najbardziej dynamicznie rozwijającym się centrum biznesowym Warszawy.  W pobliżu znajdują również liczne teatry, kina, muzea oraz galerie sztuki oraz Pałac Kultury i Nauki.

Lokalizacja

Dom & House

Nieruchomość została dodana do schowka

Nieruchomość została usunięta ze schowka