634 213 zł

74,55 m2
4 pok.

Mieszkanie na Sprzedaż  |  Rumia ul. Kosynierów

Rumia

ul. Kosynierów

634 213 zł

8 507 zł /m2

DH628369
DH628369

Powierzchnia

74,55 m2

Ilość pokoi

4

Piętro / Pięter

1 / 2

Rok budowy

2027

Rynek

Pierwotny

Termin oddania

I kwartał 2027 r.

Ogrzewanie

CO miejskie

Stan techniczny

deweloperski

Balkon/taras

Tak

Garaż/miejsce parkingowe

Tak

Winda

Tak

Opis

RABAT na mieszkania czteropokojowe – oszczędzasz aż 36 000 zł przy zakupie tego lokalu.

Kupujący nie płaci prowizji!

Jesteśmy partnerskim biurem sprzedaży – działamy we współpracy z deweloperem, zapewniając pełne wsparcie na każdym etapie zakupu!

Nowoczesna inwestycja mieszkaniowa realizowana przez dewelopera o ugruntowanej pozycji na rynku i wieloletnim doświadczeniu, zlokalizowana przy ul. Kosynierów w Rumi, w centralnej części miasta. Kameralny budynek o niewielkiej skali, zaprojektowany z myślą o funkcjonalności i wygodzie codziennego użytkowania. Oferta skierowana zarówno do rodzin z dziećmi, jak i osób poszukujących nieruchomości o potencjale inwestycyjnym.

Bliskość szkoły, przedszkola oraz pełnej infrastruktury miejskiej sprawia, że lokalizacja dobrze sprawdzi się w codziennym życiu oraz przy najmie długoterminowym.

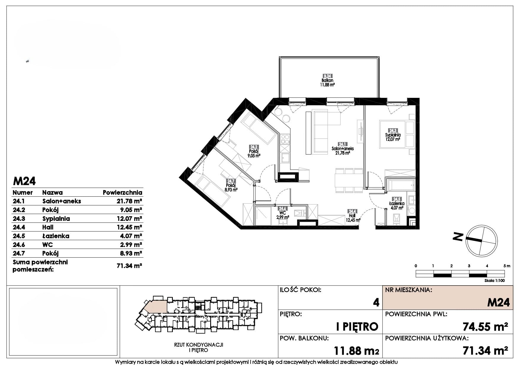
Mieszkanie o powierzchni użytkowej 74,55 m2 znajduje się na 1 piętrze w ekspozycji północno – wschodniej.

Lokal, składa się z przestronnego salonu z aneksem kuchennym, sypialni, dwóch pokoi, łazienki, wc i przedpokoju.

Do apartamentu przynależy miejsce w hali garażowej dodatkowo płatne 38.000 zł oraz komórka lokatorska w cenie 4.600,00 zł/m2 – metraż od 2,42 – 2,93 m2 lub komórka lokatorska: K 1- K 19 – 5.000,00 zł/m2 – metraż od 4,94 – 9,13 m2.

Pomieszczenia
– salon z aneksem kuchennym (21,78 m2)
– sypialnia (12,07 m2)
– 2 pokoje (9,05 i 8,93 m2)
– łazienka (4,07 m2)
– WC lub druga łazienka (2,99 m2)
– przedpokój (12,45 m2)
– balkon (11,88 m2)

Lokalizacja
Centralna część Rumi z szybkim dostępem do komunikacji miejskiej oraz głównych ciągów komunikacyjnych w kierunku Redy i Trójmiasta.
W bezpośrednim sąsiedztwie znajdują się sklepy, punkty usługowe, szkoła oraz przedszkole, co zapewnia wygodę codziennego funkcjonowania.
Dodatkowym atutem lokalizacji jest bliskość Parku Starowiejskiego oraz hali sportowej MOSiR, oferujących przestrzeń do rekreacji i aktywnego spędzania czasu. W niedalekiej odległości znajduje się również rynek „Renk”, odbywający się w każdą sobotę.
Stacja SKM Rumia oddalona jest o ok. 20 minut spacerem lub ok. 3 minuty jazdy samochodem.

Zalety
– funkcjonalny, 4-pokojowy układ idealny dla rodziny
– wysoki sufit 2.70 m
– centralna lokalizacja z pełną infrastrukturą
– niewielka skala inwestycji
– miejsca postojowe
– dobra propozycja zarówno do zamieszkania, jak i pod wynajem długoterminowy
– renomowany deweloper targo. com. pl
– zakup bez PCC

Wideo
Lokalizacja

Adres strony dewelopera: https://www.targo.com.pl/

Dom & House

Nieruchomość została dodana do schowka

Nieruchomość została usunięta ze schowka