1 249 000 zł

75 m2
6 pok.

Mieszkanie na Mieszkanie na Sprzedaż  |  Gdańsk Śródmieście ul. św. Ducha

Gdańsk Śródmieście

ul. św. Ducha

1 249 000 zł

16 653 zł /m2

DH631384
DH631384

Powierzchnia

75 m2

Ilość pokoi

6

Piętro / Pięter

4 / 4

Rok budowy

1955

Rynek

Wtórny

Ogrzewanie

CO miejskie

Stan techniczny

bardzo dobry

Garaż/miejsce parkingowe

Tak

Opis

Wyjątkowa nieruchomość położona w samym sercu Gdańska, przy prestiżowej ulicy Św. Ducha. To propozycja łącząca historyczny klimat starej kamienicy z nowoczesnym designem mieszkań. Oferta obejmuje dwa niezależne, w pełni wyposażone apartamenty w ramach jednej nieruchomości, co pozwala na jednoczesne zakwaterowanie aż 12 gości. Stanowi to idealną inwestycję, maksymalizacja ROI wynosi około 8% rocznie. Wnętrza wyróżniają się rustykalnym stylem i unikatowymi detalami, takimi jak sufity z XVIII-wiecznych desek pochodzących z rozbiórki gdańskiego kościoła. Apartamenty usytuowane są przy samym Kościele Mariackim, skąd roztacza się malowniczy widok na dachy gdańskich kamienic.

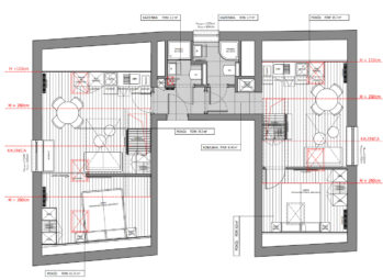
Pomieszczenia
Nieruchomość została podzielona na dwie autonomiczne strefy:
Apartament A (lewa strona):
– Salon z aneksem kuchennym (ok. 19 m2)
– Sypialnia (ok.12 m2)
– Funkcjonalna antresola (ok. 6 m2)
Prywatna łazienka (ok. 2 m2)
– Korytarz (ok. 5 m2)
Apartament B (prawa strona):
– Salon z aneksem kuchennym (ok. 16 m2)
– Sypialnia (ok. 9 m2)
– Funkcjonalna antresola (ok. 4 m2)
– Prywatna łazienka (ok. 3 m2)

Lokalizacja
Ulica Św. Ducha to jedna z najbardziej pożądanych lokalizacji na mapie Gdańska. Mieszkanie znajduje się w sercu Starego Miasta, zaledwie kilka kroków od Bazyliki Mariackiej, Żurawia oraz Długiego Targu. To miejsce, w którym historia spotyka się z tętniącym życiem centrum kulturalnym i towarzyskim.
W bezpośrednim sąsiedztwie znajdują się najlepsze gdańskie restauracje, kawiarnie, teatry oraz muzea. Dzięki bliskości Dworca Głównego oraz komunikacji miejskiej, lokalizacja zapewnia idealne połączenie z całym Trójmiastem, co jest kluczowe dla turystów oraz najemców długoterminowych.

Zalety
– Serce Starego Miasta,
– Maksymalizacja ROI około 8% rocznie,
– Możliwość wynajmu dwóch niezależnych jednostek,
– Oryginalne XVIII-wieczne detale i rustykalny klimat,
– Możliwość przejęcia relacji z profesjonalną firmą zarządzającą wynajmem,
– Dostęp do patio z bezpłatnym parkowaniem,
– Apartamenty gotowe do wejścia lub dalszego wynajmu od ręki. 

Opłaty
– Miesięczne opłaty na poziomie 830 zł

Lokalizacja

Dom & House

Nieruchomość została dodana do schowka

Nieruchomość została usunięta ze schowka